livekindly

LIVEKINDLY COLLECTIVE

Für das international agierende Unternehmen LiveKindly Collective – zu dem unter anderem die Marke LikeMeat gehört – entstand im Düsseldorfer Medienhafen ein modernes, zukunftsorientiertes Headquarter.
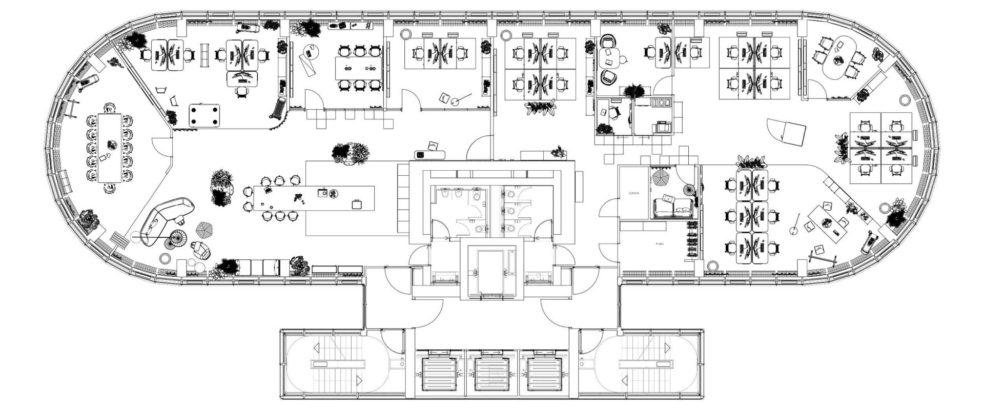
Das Büro im ikonischen SIGN-Gebäude überzeugt durch lichtdurchflutete Räume, großzügige Glasflächen und ein klares, zeitgemäßes Design. Das modulare Multi-Space-Konzept kombiniert offene Arbeitsbereiche und geschlossene Rückzugszonen auf intelligente Weise und ermöglicht so eine flexible Nutzung der Flächen – ideal für ein dynamisch wachsendes Unternehmen.

Headquarter im SIGN

Gesamtfläche
484 m²
Etagen
1
Kapazität / Arbeitsplätze
42 Workstations
Open-Space-Arbeitsplätze
16–20
Besprechungsräume
4
Fokus-/Phone-Boxen
6
Open Space Anteil
65 %
ORT
Düsseldorf Medienhafen
Raumperspektiven

The atmosphere Of a comfortable work

Ein besonderes Highlight ist die Showküche, die speziell für Veranstaltungen und Kundenevents konzipiert wurde. Hier werden die eigenen Produkte unmittelbar erlebbar – sie dient als Bühne für Präsentationen, Kochabende und Markenerlebnisse, bei denen die pflanzlichen Lebensmittel des Unternehmens im Mittelpunkt stehen. Zugleich fungiert sie als kommunikativer Treffpunkt für Austausch, Begegnung und gemeinsames Erleben – ganz im Sinne der Markenphilosophie von LiveKindly.

Das Raumkonzept wird durch drei modern ausgestattete Meetingräume, einen Loungebereich sowie akustisch optimierte Zonen ergänzt, die den Wechsel zwischen konzentriertem Arbeiten und kreativer Zusammenarbeit fördern.

Mood

Gestaltungsvorschlag

Mit einer Möblierung von Steelcase entstand ein harmonisches Zusammenspiel aus Funktion, Flexibilität und Ästhetik, das die Gestaltungsidee konsequent fortführt und die Identität des Unternehmens subtil widerspiegelt.

So entstand eine inspirierende Arbeitsumgebung, die Wohlbefinden, Produktivität und Teamgeist gleichermaßen stärkt – und den nachhaltigen, zukunftsgerichteten Charakter des Unternehmens architektonisch erlebbar macht.